Klik her, hvis du er interesseret i at høre mere om vore lejeboliger
Datablad for bolig beliggende Nørregade 21, 4863 Eskilstrup

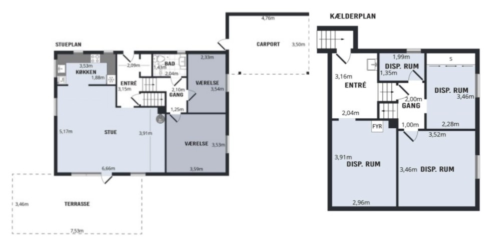
Utraditionelt og velbygget 2-planshus på 90 m2 beboelse i forskudte plan og 60 m2 kælder i forskudte plan, opført i røde sten med rødt tegltag og sprossede plastikvinduer. Huset ligger på en 913 m2 lukket grund nær byens skole, børnehave, sportshal, indkøb og togstation. Huset er 2021 opgradet fra oliefyr til den mest moderne grønne teknologi: Luft til vand varmepumpe INDEHOLDER: Entré med pæn hoveddør, afhøvlet trægulv, dør til kælder og 5 trin op til forskudt plan. Dejlig, lys opholds- og spisestue med afhøvlet plankegulv, vinduer til haven samt glasdør til fliseterrasse Pænt elementkøkken med pæne bordplader og afhøvlet plankegulv. Øvre plan: Repos / fordelingsgang med afhøvlet trægulv, skab og loftlem med stige. Godt værelse med med afhøvlet trægulv. Stort soveværelse med afhøvlet trægulv. Pænt badeværelse med elopvarmet flisegulv, malede vægge, pænt skab med vask, nyt armatur, tagvindue samt bruseniche med flisevægge og glasvægge/-skydedør KÆLDER: Lille fordelingsgang med trægulv og 3 trin til nedre kælder. Opvarmet kontor/disponibelt rum med clicgulv og skabsvæg med skydelåger (må ikke bruges til beboelse) Stort, disponibelt rum med clicgulv (må ikke bruges til beboelse) Baggang med ældre dør til trappe under hoveddøren, grovvask og stik til vaskemaskine. Fyrrum med nyt varmepumpe anlæg. Desuden 18 m2 carport i træ med klart pladetag og stor indkørsel med flisebelægning. I haven er nogle udhuse. Haven er stort set udlagt med græs og en lille frugthave |
Økonomi
Forbrugstal er baseret på tidligere lejers forbrug og er derfor kun vejledende
|
Husleje |
|
Forbrug |
|
Overskrift |
|
|
Årlig: |
74400 |
Varmekilde |
luft/vand varmepumpe |
Boligareal |
90 |
|
Månedlig: |
6200 |
Varmeforbrug |
0 |
Antal rum/vær |
4 |
|
Indskud: |
18600 |
Vandforbrug |
1588 |
Etager |
2 |
|
felt |
|
Vandafledning |
4788 |
Kælder |
60 |
|
felt |
|
Elforbrug |
Udhus |
||
|
felt |
|
Renovation |
3786 |
Garage |
18 |
Hus set fra bagside
Entre
Køkken